双口排气阀适用于以水为介质的管道,作为去除管道内气体的装置,以提高输水设备的效率,保护管道不变形、不破裂,是管道必不可少的装置。
运行特性
1.它可以排出管道中的气体,减少阻力,节约能源。
2.当管道处于负压状态时,本产品可自动吸入空气,防止管道破裂。
3.浮球采用不锈钢制造,使用寿命长,安全可靠。
本阀适用于温度不超过100℃的水、热水管道上使管道内的空气全部排出。
⑴注:D>350mm管路请选单口排气阀(QB1-10)。
⑵安装双口排气阀,底下一定要安装一只保护阀门、球阀(Q41F-16),以免检验停水。
⑶如需方求方本排气阀法兰大小尺寸如变动,请在合同上注明法兰连接尺寸。
本排气阀适用水、热水、高温度100℃的管道上,使管道内的气体全部排出。
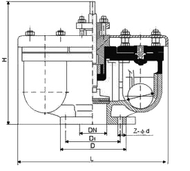
连接尺寸
公称通径
| D
| D1
| L
| H
| do
| Z-Φ
|
50 | 160 | 125 | 345 | 315 | 75 | 4-14 |
80 | 195 | 160 | 345 | 315 | 75 | 4-14 |
100 | 215 | 180 | 345 | 315 | 75 | 4-18 |
150 | 280 | 240 | 475 | 380 | 90 | 8-23 |
200 | 335 | 245 | 475 | 420 | 90 | 8-23 |
QB2-10型双口排气阀每小时排气量表
规格 | 50 | 75 | 100 | 150 | 200 |
立方米/小时 | 4-173 | 85-352 | 14-597 | 22-904 | 27-1145 |













