产品介绍:
内衬止回阀也称为逆止阀。这种类型的阀门用于使介质只能朝一个方向流动,并防止方向流动。通常,该阀门自动工作,在一个方向流动的流体压力下阀门打开。流体向相反方向流动时,流体压力和阀门的自匹配阀作用于阀门上,阻碍了流动。
产品特性:
内衬止回阀包括旋转止回阀和提升止回阀。旋转式止回阀有中间铰链机构,门等阀门自由地靠在倾斜的阀门表面上。为了使阀门每次都能达到阀门面的适当位置,阀门设计在铰链机构上,使阀门有足够的旋转空间,使阀门能够真正与阀门完全接触。阀门都可以用金属制造,也可以根据使用性能在金属上镶嵌皮革、橡胶或合成盖子。
旋转止回阀在完全打开的情况下,流体压力几乎不受干扰,因此通过阀门的压降相对较小。升降式止回阀的阀门位于阀体的阀门密封面上。除了阀门可以自由上升外,其余部分与截止阀一样,由于流体压力,阀门从阀门密封面上抬起,介质回流导致阀门下降到阀门上,切断了流量。根据使用条件,阀门可以是全金属结构,也可以是将橡胶垫或橡胶圈嵌在阀门框架中的形式。与截止阀一样,流体通过提升止回阀的通道也很窄,因此通过提升止回阀的压降大于旋转止回阀,对旋转止回阀的流动几乎没有限制。
产品小样:

衬氟止回阀主要衬里
聚全氟乙烯FEP (F46)
适用媒体:
所有有机溶剂或试剂、白色或农用无机酸、碱、酮、芳香烃、氯烃等。
使用温度:
-85-150
特点:力学、电学性能和化学稳定性基本与F4相同,但突出的优点是动态韧性。
具有高,优秀的耐候性和放射性。
聚三氟乙烯PCTEF (F3)
适用媒体:
各种有机溶剂、武器腐蚀液(氧化性酸类)
使用温度:-195至120
特点:耐热性、电学性能和化学稳定性仅次于F4,机械强度、蠕变性能、硬度均优于F4。
聚丙烯:RPP
适用介质:无机盐类的水溶液、无机酸类、碱类的稀或浓溶液。
使用温度:-14~80
特点:是最轻的塑料之一,屈服、拉伸、抗压强度、硬度均优于低压聚乙烯,具有出色的刚度、耐热性、成型性和经济性。变形后机动性、流动性、弯曲弹性。
聚氯乙烯:硬)PVC
适用介质:耐水性、浓碱、非氧化性酸、链条、油、臭氧等。
使用温度:0-55
特点:机械强度高,化学稳定性及介电性能好,耐油性及抗航程性好,易于焊接。
粘合起来价格便宜。
聚四氯乙烯PTFE(F4)
使用介质:强酸、强酸、强酸剂等。
使用温度:-200至180
特点:优良的化学稳定性、耐热性、耐寒性、摩擦系数低,自润滑材料优良,但机械性能低,流动性差,热膨胀大。
聚氯乙烯PVDF(F2)
使用介质:对大部分化学药品和溶剂有抵抗力。
使用温度:-70~100
特点:LAJENT强度和抗压强度优于F4,抗弯,耐候性强,耐辐射。内光和老化等最大的特点是韧性好,容易成型。
聚烯烃:PO
适用介质:不同浓度的酸碱盐和一些有机溶剂。
使用温度:-58~80
特点:是世界上最理想的防腐材料,广泛用于旋转成型的大型设备和管道内衬。
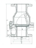
衬氟止回阀原理及结构
在使用这个阀门的过程中,介质朝图箭头的方向流动。
1.当介质沿指定方向流动时,阀门在介质力的作用下打开。当介质回流时,由于阀门自重和阀门受到介质反转力的作用,阀门和阀门的密封面紧紧贴合,从而达到防止介质回流的目的。
2.阀体和阀门的密封面采用不锈钢表面处理[1]。
性能参数
公称通经 | L | D | D1 | D2 | f | b | Z-φd | D | D1 | D2 | f | b | Z-φd | |
DN(mm) | NPS(inch) | PN1.0MPa | PN1.6MPa | |||||||||||
15 | 1/2 | 130 | 95 | 65 | 45 | 2 | 14 | 4-φ14 | 130 | 95 | 65 | 2 | 14 | 4-φ14 |
20 | 3/4 | 150 | 105 | 75 | 55 | 2 | 16 | 4-φ14 | 150 | 105 | 75 | 2 | 16 | 4-φ14 |
25 | 1 | 160 | 115 | 85 | 65 | 2 | 16 | 4-φ14 | 160 | 115 | 85 | 2 | 16 | 4-φ14 |
32 | 5/4 | 180 | 135 | 100 | 78 | 2 | 18 | 4-φ18 | 180 | 135 | 100 | 2 | 18 | 4-φ18 |
40 | 3/2 | 200 | 145 | 110 | 85 | 3 | 18 | 4-φ18 | 200 | 145 | 110 | 3 | 18 | 4-φ18 |
50 | 2 | 230 | 160 | 125 | 100 | 3 | 20 | 4-φ18 | 230 | 160 | 125 | 3 | 20 | 4-φ18 |
65 | 5/2 | 290 | 180 | 145 | 120 | 3 | 20 | 4-φ18 | 290 | 180 | 145 | 3 | 20 | 4-φ18 |
80 | 3 | 310 | 195 | 160 | 135 | 3 | 22 | 4-φ18 | 310 | 195 | 160 | 3 | 22 | 4-φ18 |
100 | 4 | 350 | 215 | 180 | 155 | 3 | 22 | 8-φ18 | 350 | 215 | 180 | 3 | 24 | 8-φ18 |
125 | 5 | 400 | 245 | 210 | 185 | 3 | 24 | 8-φ18 | 400 | 245 | 210 | 3 | 26 | 8-φ18 |
150 | 6 | 480 | 280 | 240 | 210 | 3 | 24 | 8-φ23 | 480 | 280 | 240 | 3 | 28 | 8-φ23 |
200 | 8 | 600 | 335 | 295 | 265 | 3 | 26 | 8-φ23 | 495 | 335 | 295 | 3 | 30 | 12-φ23 |
250 | 10 | 622 | 390 | 350 | 320 | 3 | 28 | 12-φ23 | 622 | 405 | 355 | 3 | 32 | 12-φ25 |
300 | 12 | 698 | 440 | 400 | 368 | 4 | 28 | 12-φ23 | 698 | 460 | 410 | 4 | 34 | 12-φ25 |
350 | 14 | 787 | 500 | 460 | 428 | 4 | 30 | 16-φ23 | 787 | 520 | 470 | 4 | 38 | 16-φ25 |
400 | 16 | 914 | 565 | 515 | 482 | 4 | 32 | 16-φ25 | 914 | 580 | 525 | 4 | 40 | 16-φ30 |
衬氟止回阀主要零部件材料
序号 | 零件名称 | 灰铸铁 | 铸钢 | 不锈耐酸铸钢 | 超低碳不锈耐酸铸钢 | ||
Z | C | P | R | PL | RL | ||
1 | 阀体/阀盖 | HT250 | WCB | CF8 | CF8M | CF3 | CF3M |
2 | 阀瓣/阀杆 | 35 | 1Cr13 | 1Cr18Ni9 | 1Cr18Ni12Mo2Ti | 00Cr18Ni10 | 00Cr17Ni14Mo2 |
3 | 衬里/阀座 | PCTEF(F3),FEP(F46),PFA(可溶F4),PP,PO | |||||
4 | 紧固螺栓 | WCB | 1Cr17Ni2 | 1Cr18Ni9Ti | |||
5 | 螺母 | PTFE(F4) | CF8 | CF8 | |||
参考资料













